DISTRITO BIOCULTURAL Y CREATIVO DE TUNJA

Tunja, Colombia
Primer puesto
2022
6700m² Ver fotos >|

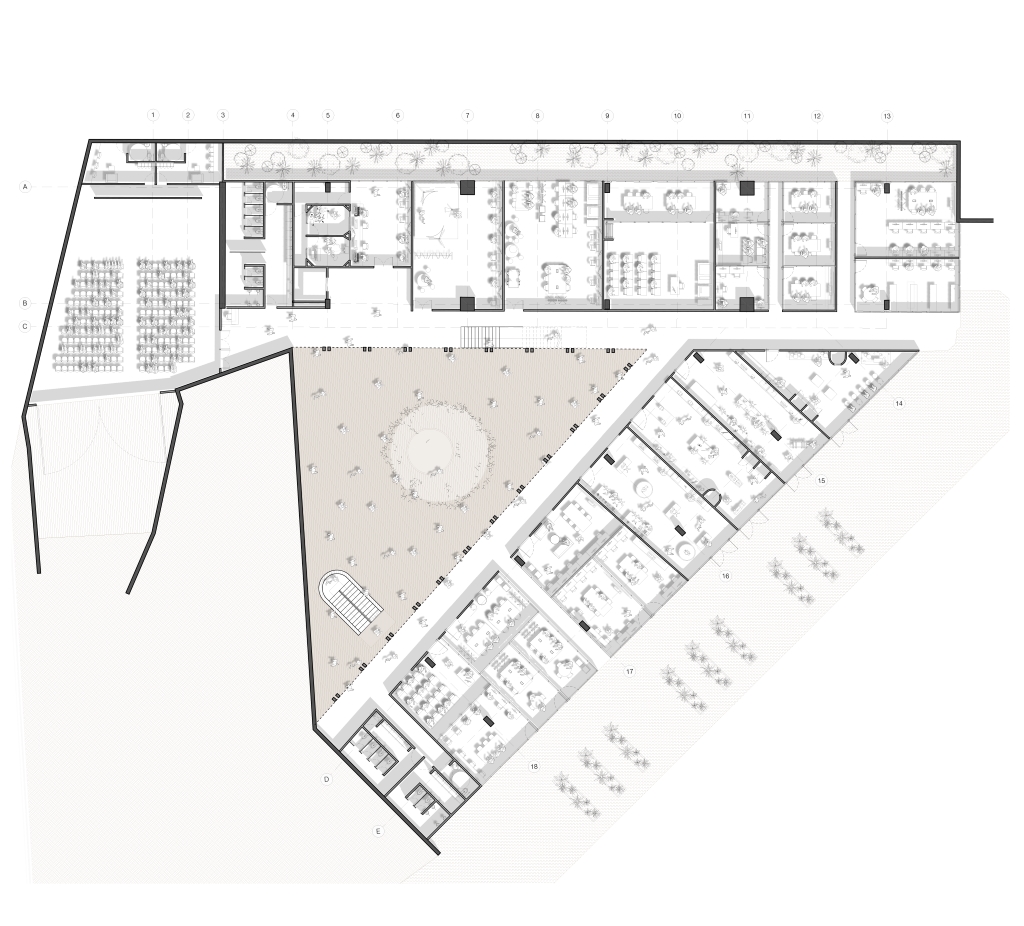
El Distrito Creativo de Tunja se ubica en el antiguo terminal de transporte, un punto estratégico que conecta directamente con el centro histórico y con uno de los corredores urbanos más transitados de la ciudad. Tunja, asentada sobre una ladera a 2.800 metros de altura, carece actualmente de hitos que señalen la importancia de su patrimonio y su relación con el territorio. En respuesta a esta carencia, el proyecto se concibe como una nueva puerta urbana capaz de articular la memoria del lugar, la vida cultural y la identidad contemporánea de la ciudad.

La intervención se organiza alrededor de una gran plazoleta biocultural, un plano topográfico artificial que funciona como espacio público de encuentro, estancia y circulación entre el centro histórico y la antigua estación del ferrocarril. Sobre este plano se desplaza un volumen prismático suspendido que actúa como elemento icónico y enfatiza la idea de umbral. La geometría del conjunto responde a las condiciones del predio y a la necesidad de integrarse con la diversidad de escalas del entorno. El edificio adopta un claustro interior de forma triangular que regula la ventilación e iluminación natural y organiza la distribución de los espacios culturales y comunitarios.

La arquitectura establece un diálogo directo con el patrimonio de Tunja mediante la reinterpretación contemporánea de elementos tradicionales. Las tejas de arcilla, históricamente usadas en cubiertas coloniales, conforman una celosía exterior que filtra la luz y regula el asoleamiento. La estructura en madera laminada remite a los sistemas constructivos del centro histórico, transformados mediante técnicas actuales para ofrecer mayor eficiencia y expresividad formal. El proyecto incorpora estrategias pasivas de confort ambiental basadas en ventilación cruzada, doble piel, iluminación natural y control térmico.

Concebido como un espacio flexible, el Distrito Creativo permite múltiples configuraciones: eventos al aire libre, exposiciones temporales, actividades educativas y presentaciones escénicas, consolidándose como un nuevo referente cultural para la ciudad.

Tunja, Colombia
First place
2022
6700m²

The Creative District of Tunja occupies the former bus terminal, a strategic location that directly connects to the historic center and one of the city’s most important urban corridors. Tunja, situated on a mountainside at 2,800 meters above sea level, currently lacks iconic landmarks that reflect the significance of its heritage and its relationship with the landscape. In response to this condition, the project is conceived as a new urban gateway capable of articulating the memory of the place, the city’s cultural life, and a contemporary identity.

The proposal is structured around a large biocultural plaza, an artificial topographic platform that functions as a public space for gathering, circulation, and transition between the historic center and the former railway station. Above this surface, a suspended prismatic volume acts as an iconic element that reinforces the idea of a threshold. The geometry of the intervention responds to the shape of the site and the need to integrate with the diverse scales of the surrounding urban fabric. A triangular internal courtyard organizes the cultural and community spaces while ensuring natural ventilation and daylight.

The architecture establishes a direct dialogue with Tunja’s historic context through a contemporary reinterpretation of traditional elements. Clay tiles, historically used in colonial roofs, are reimagined as a ceramic lattice on the façade, filtering light and regulating solar exposure. The laminated timber structure recalls the wooden frameworks characteristic of the historic center, updated through modern construction techniques to achieve greater efficiency and expressive clarity. The project incorporates passive environmental strategies, including cross-ventilation, a double-skin envelope, natural lighting, and thermal control.

Designed as a flexible environment, the Creative District accommodates multiple configurations such as open-air events, temporary exhibitions, educational activities, and performances, ultimately establishing itself as a new cultural landmark for the city.

Arriba